Atomic Pueblo, Santa Fe, NM
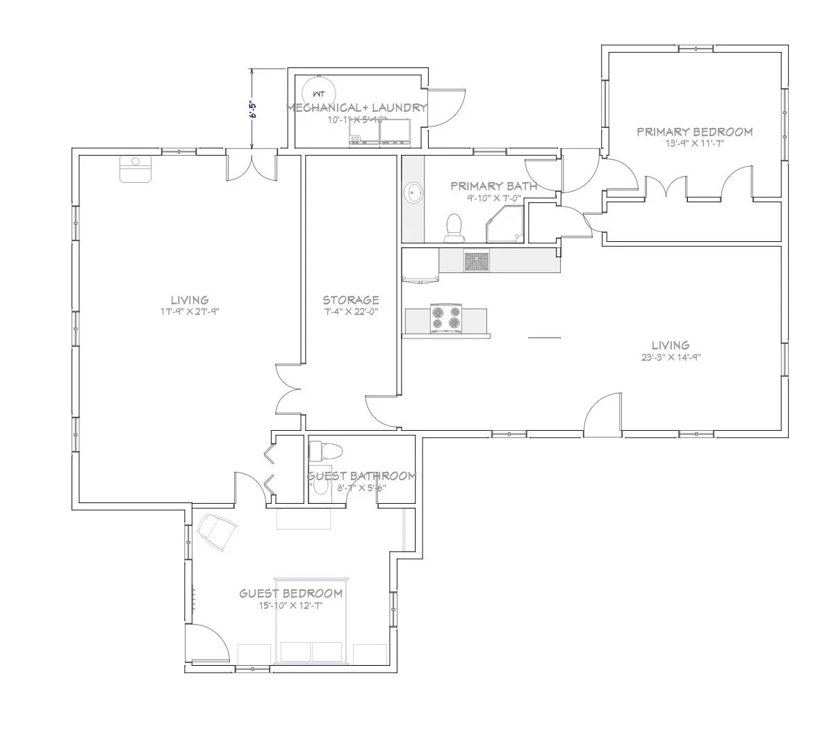
The clients brought me in to create an ‘as-built’ floor plan. From there, we have been playing with different possible layouts to reformat the kitchen and primary bathroom, add a shower to the guest bath, and create a functional furniture plan for the guest room. This is just the beginning of this ongoing consultation.

As-Built

Open Floor Plan

Schematic 2

Schematic 3